
Niski próg balkonowy to rozwiązanie cieszące się coraz większą popularnością wśród inwestorów. Dotyczy to zarówno okien i drzwi balkonowych montowanych w obiektach nowopowstających, jak i stolarki okiennej i drzwiowej dla obiektów już eksploatowanych. Niski próg balkonowy przekłada się na zwiększoną funkcjonalność przestrzeni balkonu/tarasu poprzez ułatwienie dostępu do tej przestrzeni, także dla wózków inwalidzkich. W praktyce niski próg balkonowy niweluje ograniczenia dostępu do balkonu lub tarasu, jednocześnie wpływając na estetykę otworu okiennego.
Niski próg balkonowy to rozwiązanie w sposób szczególny polecane w obiektach użytkowanych przez osoby niepełnosprawne, seniorów i dzieci. Jednak zalety tego rozwiązania doceni każdy, kto dotychczas borykał się z wysokim progiem balkonowym oraz jego przyspieszoną degradacja wynikającą z narażenia wysokiego progu na szereg czynników mechanicznych.
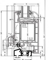
Klientów, którzy wciąż zastanawiają się, czy niski próg balkonowy to rozwiązanie, które sprawdzi się w ich mieszkaniu lub domu zachęcamy do szczegółowego zapoznania się z parametrami oferowanego systemu.
Premium Partner Schüco!